B11 75m2 Projekt czworaków małego domu czterolokalowego czterorodzinnego czworaka 4 lokalowego
Powierzchnia | 72,66m2 |
Pow. całk./1 segm. | 212,15m2 |
Powierzchnia | 99,9m2 |
Kubatura (m3) | 790/segm. |
Wysokość | 9,20m |
Kąt dachu | 35st./40st. |
Wys. gór. krawędzi elewacj frontowej | 5,00m |
Szer. el. 1segm. | 10,05m |
(możliwy do budowy na obszarach przeznaczonych pod budynki jednorodzinne)
Cztery 2-poziomowe lokale po ok. 75m2 ( projekty mieszkań bezczynszowych )
Kategoria: budynki mieszkalne jednorodzinne, I kategoria obiektów budowlanych
Tani w budowie, mały dom 4-lokalowy, dla 4 rodzin (2 segmenty 2-lokalowe).
75m2 - 79m2 powierzchni 1 lokalu, - czworak na małą działkę, - tylko 1 żelbetowy strop!
W każdym mieszkaniu mieszka się jak w samodzielnym niedużym, piętrowym domu (ok.75-80m2)
Latem można korzystać z uroków własnego ogrodu ok.150m2 - grilowanie, bezpieczne miejsce zabaw dla dzieci (ogrodzone), opalanie itp., zimą cieszyć się urokami długich wieczorów spędzonych przy płonącym kominku.
Parter z wygodnym, bardzo wysokim poddaszem. W każdym ok. 75m2 mieszkaniu: salon z kuchnią i wyjściem do ogrodu, 3 sypialnie, garderoba, dwie łazienki, kominek i własny ogródek.
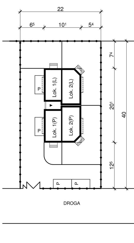
Na całość składają się dwa budynki mieszkalne jednorodzinne dwulokalowe, w zabudowie bliźniaczej, w skrócie: dwie połówki bliźniaka, każda dwulokalowa. Parter z wysokim, użytkowym poddaszem i dodatkowo strychem.


PROGRAM UŻYTKOWY:
- każdy lokal ok. 75m2 to:
- salon z kominkiem, jadalnią i wyjściem do własnego, kameralnego ogrodu;
- dwa pokoje dziecięce
- pokój rodziców z wydzieloną garderobą;
- słoneczna, duża łazienka z wielkim oknem nad wanną,
Wspólne wejście pozwala na zagospodarowanie reszty działki na 4 kameralne ogródki dostępne z każdego lokalu,
LOKAL nr 1 (przedni 72,66m2):
LOKAL nr 2 (tylny 77,22m2):
Parter: | |
0. Hall wspólny | - |
1. Przedpokój | 2,72m2 |
2. Łaz./C.O. | 2,85m2 |
3. Salon z kuchnią | 25,1m2 |
4. Schowek | 1,23m2 |
5. Schody (50%) | 1,95m2 |
Piętro: | |
6. Schody (50%) | 1,95m2 |
7. Komunikacja | 3,58m2 |
8. Pokój 1 | 11,15m2 |
9. Łazienka | 5,10m2 |
10. Pokój 2 | 9,02m2 |
11. Pokój 3 | 8,01m2 |
Parter: | |
0. Hall wspólny | - |
1. Przedpokój | 5,90m2 |
2. Łaz./C.O. | 3,37m2 |
3. Salon z kuchnią | 25,76m2 |
4. Schowek | 1,23m2 |
5. Schody (50%) | 1,95m2 |
Piętro: | |
6. Schody (50%) | 1,95m2 |
7. Komunikacja | 3,58m2 |
8. Pokój 1 | 11,15m2 |
9. Łazienka | 5,30m2 |
10. Pokój 2 | 9,02m2 |
11. Pokój 3 | 8,01m2 |
Informacje dodatkowe:
- Mała powierzchnia zabudowy (99,9m2/segment) i sposób konstrukcji - sprawiają, że dom B11 jest prosty i ekonomiczny w budowie:
- Szerokość 10m pozwala zrealizować budynek na działce nawet poniżej 20m głębokości;
- Lekki strop (w konstrukcji drewnianej) nad piętrem,
- Optymalna powierzchnia użytkowa: 75-80m2 - komfort dużego mieszkania w bloku, plus działka;
- Dwukondygnacyjność skutecznie izoluje akustycznie strefę dzienną (poziom parteru) od nocnej (poziom piętra),
- Dom zaprojektowany w technologii energooszczędnej, dobrze ocieplony. Mieszkania bardzo tanie w eksploatacji.
- Dodatkiem "extra" jest przestronny strych, który zaspokoi potrzeby magazynowe dla wyposażenia i artykułów sezonowych
Podstawowe dane techniczne:
Powierzchnia zabudowy budynku - 99,9m2/ segment
Powierzchnia użytkowa - 142,08m2/ segment (2 lokale razem)
Nachylenie dachu w stopniach: 35 i 40
Instalacja C.O. - 4 niezależne, małe kotły gazowe, zlokalizowane w pomieszczeniach łazienki (na parterze) po 1 w każdym lokalu;
- Pokrycie dachu: blachodachówka (z możliwością dachówki)
- Okna i drzwi: tylko typowe (najtańszy wariant wykonawczy), zalecane jak najcieplejsze;
- Materiały wykończeniowe elewacji i cokołu: tynki strukturalne cienkowarstwowe w różnych kolorach, dowolność;
- Ciepłe ściany: bloczki z betonu komórkowego gr. 24cm + styropian 15cm;
Współczynnik min. U=0,19W/(m2xK) (!) lub lepszy - w zależności od zastosowanego styropianu
- Stropy:
nad parterem: strop żelbetowy monolityczny
nad piętrem: w konstrukcji drewnianej z podwieszanym sufitem lekkim (najtańszy wariant wykonawczy)
- Więźba dachowa: drewniana
Projekt pełnobranżowy, z wszystkimi instalacjami
Istnieje możliwość zamówienia tylko 4 lokali razem, czyli 2 segmenty budynku dwulokalowego. Segmentów nie sprzedajemy pojedynczo.
...



PRZYKŁADY REALIZACJI B11:
















